|
GYJC型微机母线绝缘监察装置
一、产品概述 GYJC型微机母线绝缘监察装置是我公司最新研制成功的新型产品,内部CPU以TI公司16位高档单片机芯片MSP430F149为采样运算、逻辑判断和控制中心,装置采用汉字液晶显示器、信号指示灯、轻触式按键和智能化软件,具有外形轻巧美观、安装方便、功耗极低、免调试和维护等创新点。 该装置实时监测PT二次侧各相电压及零序电压,当发现母线绝缘下降或PT断线时,可及时进行报警,配合现场人员进行接地故障或断线故障的诊断和排查工作,可配置RS485通信接口,适用于无人值守变电站。 二、使用条件 l 户内使用,并且室内通风良好; l 运行环境温度:-20℃--50℃; l 储存环境温度:-25℃--70℃; l 湿度:最大湿度90%,表面无凝露; l 防护等级:IEC529-P53; l 海拔:<2000M; l 大气压力: 80~110Kpa; l 周围介质无导电尘埃与导致金属或使绝缘损坏的腐蚀性气体、霉菌等。 三、技术参数 l 工作电源:AC/DC220V(不分极性); l 功耗: 1. 电源回路:DC220V≤5W或者AC220V≤5VA; 2. 交流电压回路:≤1VA; 3. 交流额定电压:100V。 l 告警接点容量(常开无源触点):5A,250VAC/5A,30VDC。 l 通讯接口:RS485,波特率1200bps~9600bps,装置地址:0-255; l 抗干扰性能 1. 装置能承受GB/T14598.14规定的严酷等级为Ⅲ级的静电放电试验; 2. 装置能承受GB/T14598.9规定的严酷等级为Ⅲ级的幅射电磁场干扰试验; 3. 装置能承受GB/T14598.10规定的严酷等级为Ⅲ级的快速瞬变干扰试验; 4. 装置能承受GB/T14598.13规定的频率为1MHz及100kHz衰减振荡波(第一半波电压幅值共模为2.5kV,差模为1kV)脉冲群干扰试验。 l 绝缘性能 1. 绝缘耐压标准满足GB/T14598.3规定。 l 机械性能 1. 工作条件:通过GB/T11287规定的Ⅰ级振动响应检验,及GB/T14537规定的I级冲击响应条件。 2. 运输条件:通过GB/T11287规定的Ⅰ级振动耐久检验,及GB/T14537规定的I级冲击耐久和碰撞检验。 四、装置特点 l CPU采用TI公司的MSP430F149,该芯片运行速度快、抗干扰性能强、集成度高,极大简化了外围电路的设计,同时方便了产品的软件升级和更新; l 生产工艺采用表贴焊接技术,提高了整机的可靠性能; l 整机功耗极低,在节能降耗方面发挥了决对优势; l 显示界面采用128×64汉字图形液晶显示器,中文菜单提示,显示信息丰富、直观; l 装置系统软件采用模块化设计、原理先进、性能稳定、安全可靠; l 可实时显示系统时钟、日历、母线PT二次侧各相电压和零序电压值; l 有记忆功能,可以存储最近15次发生的故障信息,掉电后不丢失; l 各参数均可根据现场实际情况通过菜单进行设定; l 可配置RS485通讯,可将各种信息上传至有关部门。 五、工作原理 装置实时监测PT二次侧UA、UB、UC及开口三角电压,将采集到的电压经信号调理电路、AD转换电路输入到CPU,由CPU计算出具体电压值,原理框图如图1: (一)接地故障: 当装置检测到开口三角电压大于装置零压设定值时,同时判断UA、UB、UC三相电压某一相电压值是否小于接地电压设定值,即满足绝缘异常条件,装置启动定时器进行延时,延时到后若绝缘异常情况仍然发生,装置则进行显示、保存故障信息,同时给出告警信号。提醒现场人员及时查找处理接地点。 (二)断线故障: 装置具有PT断线检查功能,可通过控制字投退。判据如下: ①三相电压和>8V,最小线电压<16V; ②三相电压和>8V,最大线电压与最小线电压差>16V; 满足上述任一条件后延时,延时时实时检测故障,如故障一直存在报PT母线断线,发出运行异常告警信号,待电压恢复正常后保护也自动恢复正常。

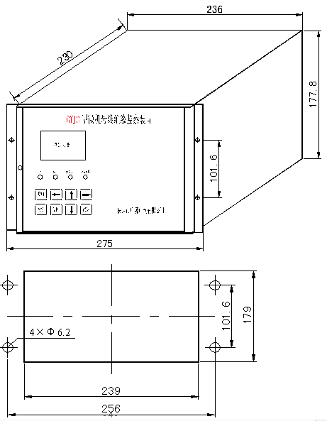
六、装置面板说明
装置面板上由液晶显示、键盘、指示灯构成,用来指示装置的工作状态及实现人机对话,具体面板布局如图四所示。
 6.1、指示灯 面板上共有4个指示灯,分别为“电源”、“运行”、“断线故障”、“绝缘异常”,指示灯的作用如下: “电源”指示灯——绿色,常亮表示装置工作电源正常。 “运行”指示灯——绿色,常亮表示装置处于正常运行状态。 “断线故障”指示灯——红色,常亮表示系统PT断线故障发生。 “绝缘异常”指示灯——红色,常亮表示系统绝缘异常,出现单相接地故障。 6.2、按键 本装置设有8键,分别为: “↑”、“↓”:多功能键,即可以作为翻屏功能,在需要修改参数的情况下,兼有调整键的功能。 “←”、“→”:光标左右移动功能,兼有调整键的功能。 “退回”:取消当前定值输入或退出当前菜单。 “确认”:菜单选择确认或定值输入确认。 “复位”:用于装置出现异常后使装置重新工作。 七、装置外形、安装开孔尺寸

八、使用说明
8.1.装置上电后进行自检,液晶显示器显示公司图标和名称,所有指示灯全亮进行自检,装置进入运行状态,红色“电源” “运行”灯闪烁,液晶显示器(LCD)实时显示系统时间,日历及PT二次侧UA、UB、UC及零序电压值,如下所示:
 在当前界面下按“↓”查看线电压和三相电压和,如下所示:
 8.2.当母线出现绝缘异常接地故障或PT断线故障时,装置开始报警,显示出故障画面,包括了故障标题、日期和时间以及PT二次侧UA、UB、UC及零序电压值,同时对应故障指示灯发光、告警继电器常开输出结点闭合。
 8.3. 在运行状态按“退回”键可进入功能菜单;此时光标位于第一项,按“↑”、“↓”键可移动光标,按“回车”键可进入光标所在项子菜单。按下“退回”键可以退出系统菜单,画面如下图所示:
 8.4.光标位于“故障报告”时,按“回车”键进入追忆故障报告画面,光标位于“显示信息”时,按“回车”键可显示装置记录的最近一次故障信息,按按 “↓”键可追忆最近10次发生的故障信息。 8.5.如果没有故障信息,则显示无故障信息画面;按下“退回”键可以返回上级菜单。 8.6.光标位于“清除信息”时,按“回车”键可清除所有的故障信息,并同时显示故障已清除,按下 “退回”键可以返回上级菜单。 8.7.在光标指向”校时”项时,按下”回车”键,可进入修改时钟面画,如下所示:
 在此画面可以修改装置当前时钟,当前修改的单元为阴影状态,可以通过按“←”、“→”键进行当前修改单元的切换,通过按“↑”、“↓”键可以进行数据的修改。按下“回车”键可以确认保存设定的值,按下“退回”键可以取消并返回上级菜单。 8.8、选择修改定值项按下”回车”键时,显示画面如下:如时通过按“↑”、“↓”键可移动光标选择修改项,按“←”、“→”键对当前值进行加减操作,按下“回车”键进行保存。
 8.9、选择通讯参数项按下“回车”键时,显示画面如下:如时通过按“↑”、“↓”键可移动光标选择修改项,按“←”、“→”键对当前值进行加减操作。按下”回车”键进行保存。

九、通讯规约

装置无故障返回格式:
|
1 |
EBH |
同
步
头 |
|
2 |
90H |
|
3 |
EBH |
|
4 |
90H |
|
5 |
STX(02H) |
起始符 |
|
6 |
目的站号 |
装置地址 |
|
7 |
07H |
无故障特征码 |
|
8 |
00H |
结束符 |
装置有故障时返回格式:
|
1 |
EBH |
同
步
头 |
|
2 |
90H |
|
3 |
EBH |
|
4 |
90H |
|
5 |
STX(02H) |
起始符 |
|
6 |
目的站号 |
装置地址 |
|
7 |
60H |
故障特征码=60H |
|
8 |
11H |
报文长度=11H |
|
9 |
YEAR |
年 |
|
10 |
MONTH |
月 |
|
11 |
DAY |
日 |
|
12 |
HOUR |
时 |
|
13 |
MINUTE |
分 |
|
14 |
SECOND |
秒 |
|
15 |
UA的低八位 |
A相电压 |
|
16 |
UA的高八位 |
|
17 |
UB的低八位 |
B相电压 |
|
18 |
UB的高八位 |
|
19 |
UC的低八位 |
C相电压
|
|
20 |
UC的高八位 |
|
21 |
U0的低八位 |
零序电压 |
|
22 |
U0的高八位 |
|
23 |
01H/02H |
故障类型:01-接地;02-断线 |
|
24 |
SUM 低八位 |
校验和 |
|
26 |
SUM 高八位 |
|
27 |
03 |
结束符 |
1. 报文长度指故障特征码、报文长度、报文内容、故障类型长度之和,固定为12H 2. 代码和指故障特征码,报文长度,报文内容、故障类型之和的低16位值。 3. 初始化方式:8bit数据位,1位起始位,1位停止位,异步,无奇偶校验,半双工,波特率1200~9600bps。 4. 装置地址:00H-FFH。
下发校时报文:
|
1 |
EBH |
同
步
头 |
|
2 |
90H |
|
3 |
EBH |
|
4 |
90H |
|
5 |
STX(02H) |
起始符 |
|
6 |
目的站号 |
装置地址 |
|
7 |
30H |
特征码=30H |
|
8 |
08H |
报文长度=08H |
|
9 |
YEAR |
年 |
|
10 |
MONTH |
月 |
|
11 |
DAY |
日 |
|
12 |
HOUR |
时 |
|
13 |
MINUTE |
分 |
|
14 |
SECOND |
秒 |
|
15 |
SUM 低八位 |
校验和 |
|
16 |
SUM 高八位 |
|
17 |
10H |
结束符 |
装置针对校时返回的报文:
 注:当下发校时报文的报文长度、结束符、校验和、时间不正常,任意一项不对时均返回校时错误报文,当这些全部正确时返回校时正确报文。
下发查询遥测量的报文:
|
1 |
EBH |
同
步
头 |
|
2 |
90H |
|
3 |
EBH |
|
4 |
90H |
|
5 |
STX(02H) |
起始符 |
|
6 |
目的站号 |
装置地址 |
|
7 |
26H |
结束符 |
装置返回遥测量报文:
|
1 |
EBH |
同
步
头 |
|
2 |
90H |
|
3 |
EBH |
|
4 |
90H |
|
5 |
STX(02H) |
起始符 |
|
6 |
目的站号 |
装置地址 |
|
7 |
20H |
特征码=20H |
|
8 |
0AH |
报文长度=0AH |
|
9 |
UA的低八位 |
A相电压 |
|
10 |
UA的高八位 |
|
11 |
UB的低八位 |
B相电压 |
|
12 |
UB的高八位 |
|
13 |
UC的低八位 |
C相电压 |
|
14 |
UC的高八位 |
|
15 |
U0的低八位 |
零序电压 |
|
16 |
U0的高八位 |
|
17 |
SUM和低八位 |
校验和 |
|
18 |
SUM和高八位 |
|
19 |
03H |
结束符 |
| 注: 1. 报文长度指特征码、报文长度、报文内容长度之和,固定为0AH 2. 代码和指特征码,报文长度,报文内容之和的低16位值。 3. 装置地址:00H-FFH。 |
附图一、GYJC型微机母线绝缘监察装置母线接地判断依据

附图二、GYJC型微机母线绝缘监察装置PT断线判断依据

附图三、GYJC型微机母线绝缘监察装置端子排及典型接线图
|
|